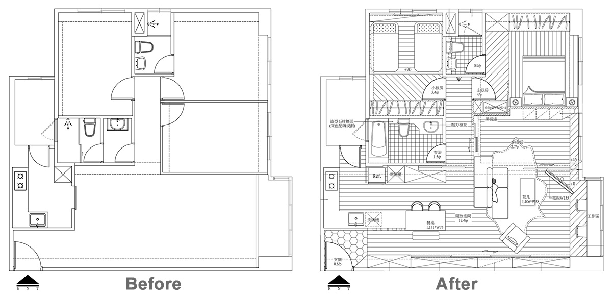
Alomuabannhadat - Căn nhà này của một cặp vợ chồng và hai con nhỏ với mong muốn thiết kế tông màu đơn giản, có thể tận dụng được đồ đạc của người chủ cũ để lại và đảm bảo được không gian vui chơi của hai đứa trẻ.

Căn nhà được thiết kế theo không gian mở, ranh giới các phòng được chia theo màu sắc. Dọc theo hiên nhà, ánh sáng vàng ấm áp chiếu lên bức tường xi măng màu xám nhạt đơn giản, mang lại sự ấm áp ấm áp cho gia đình và hiên nhà tinh tế.

Phòng khách mở này có tầm nhìn rộng, và nhà bếp khép kín cũng mở ra. Với sự mở rộng của các dụng cụ nhà bếp, một khu vực ăn uống ấm áp được tạo ra, một tủ bếp màu đen và trắng cổ điển với hệ thống thẩm mỹ được sử dụng. Nội thất gỗ ấm áp và nhẹ nhàng ở phòng bếp.

Để tạo ra một môi trường không bị giới hạn phù hợp cho trẻ em chạy và chơi, sàn gỗ được sử dụng, ghế sofa không định hướng cũng được lắp đặt.
Phòng khách rất linh hoạt, cho phép chủ sở hữu chuyển sang hình chữ L hoặc hình vuông theo nhu cầu và loại bỏ tủ TV truyền thống, sử dụng khung TV treo có thể xoay 180 độ để điều chỉnh. Ngoài thể hiện trực quan, nó cũng thúc đẩy sự tương tác giữa cha mẹ và con cái.

Dựa vào phía sau là tủ hệ thống do chủ cũ để lại. Sau khi được đội ngũ thiết kế tân trang lại, nó được tạo hình thành một tủ phẳng với nhiều chức năng lưu trữ, bề mặt được phủ bằng gỗ sáng mềm. Ngoài ra, thông qua các đường rơi của cửa xuống trần nhà, dưới ánh đèn được sắp xếp trật tự, được trang trí với quạt trần tinh giản màu trắng tinh khiết.

Chủ nhân căn nhà có hai con còn nhỏ và không cần phòng ngủ riêng. Do đó, căn phòng được đặt trước tiên để sử dụng cho việc học và có thể điều chỉnh chức năng sau khi đứa trẻ lớn lên.

Do đó, cửa trượt có tường màu xám với các đặc tính trong suốt thay thế cho ngăn tường chắc chắn, để nó làm mờ ranh giới và tầm nhìn mang lại cho căn phòng không gian rộng hơn. Các sắc thái của màu xám và màu xanh được tô điểm bằng một khung gỗ mở, thể hiện thoải mái tự nhiên và trong lành.

Để mở rộng chức năng của phòng ngủ chính, thiết kế xoay tường được thiết kế khéo léo tạo thành một rãnh giữa tường của phòng làm việc và phòng ngủ, bàn trang điểm được thiết kế đứng. Tông màu xanh đậm được sử dụng tạo ra không gian yên tĩnh và thư giãn.

Sàn gỗ có chiều cao lớn, để phòng trẻ em không chỉ được sử dụng làm phòng ngủ mà còn có chức năng của phòng chơi, để hai bé có thể vui chơi một cách an toàn nhất.

Chủ nhân mong muốn thiết kế phòng tắm theo các phong cách khác nhau. Do đó, phòng tắm sử dụng tông màu đơn giản của phong cách Bắc Âu với màu xám và trắng của gạch hình lục giác, tạo điểm nhấn thị giác.

Phòng tắm dành cho khách mạnh dạn sử dụng gạch ốp tường trắng tinh khiết để chiếu sáng những viên gạch đen trắng, thể hiện sự tương phản đen trắng cổ điển và khéo léo sử dụng các tấm kim loại vào các rãnh của gạch để thêm các lớp trực quan.

theo CafeLand