Alomuabannhadat - Căn hộ độc đáo có diện tích 145m2 này tọa lạc tại tầng 2 của một dự án chung cư Q.7, HCM

Theo yêu cầu của gia chủ, kiến trúc sư đã cải tạo lại căn hộ có nhiều không gian nhỏ riêng lẻ thành một không gian chung rộng lớn, mang đến một cái nhìn rộng thoáng và mọi sinh hoạt được tiếp diễn một cách liền mạch từ cách bố trí, sắp đặt đến cách décor tại từng vị trí.

Thành phố Hồ Chí Minh với 13 triệu người, cũng là thành phố chiếm dân số đông nhất Việt Nam, và có hàng triệu người đang sống trong những tòa nhà chung cư cao tầng, ngày qua ngày họ đi và trở về tổ ấm, bó hẹp trong các bức tường.
Chủ của căn hộ này cũng là một trong số đó, và anh mong muốn ngôi nhà của mình phải rời xa tất cả những lo lắng bên ngoài cuộc sống, công việc, chỉ cần mở cửa bước vào nhà như bước vào thiên đường bình an, tận hưởng những giây phút thoải mái nhất bên trang sách và có một giấc ngủ ngon trọn vẹn nhất.



Từ những yêu cầu trên kiến trúc sư đã biến các không gian nhỏ bị chia cắt thành một không gian lớn, giải phóng tầm nhìn thoáng, rộng hơn bằng những vách tường ngăn chia thành vách ngăn di động có thể vận hành linh động theo nhu cầu của chủ nhà.




Ngoài ra toàn bô phần trần sẽ là lớp gỗ lưới lắp đầy phần hiện trạng trần bê tông, điểm sắc sảo và ấn tượng chính là lớp trần gỗ được uyển chuyển, mềm mại như những đám mây trôi đã mang đến cho căn hộ cảm giác nhẹ nhàng, êm ái, xóa tan đi những cảm giác mệt mỏi sau một ngày làm việc vất vả.


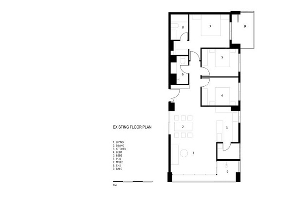
Mặt bằng căn hộ

Ý tưởng thiết kế trần gỗ căn hộ

theo CafeLand