Alomuabannhadat - Ngôi nhà này nằm trong khu dân cư mới của thành phố Hà Tĩnh.

Là một ngôi nhà yên bình thông qua việc sử dụng không gian kiến trúc có thể thức tỉnh, khơi dậy ý thức về đời sống tinh thần cho các thành viên cũng như đáp ứng đầy đủ nhu cầu sống của một gia đình người Việt.

Ngôi nhà có cấu trúc đơn giản nhưng đầy đủ chức năng như các ngôi nhà hiện đại ở đô thị đang phát triển. Ngôi nhà được xây dựng theo phương pháp xây dựng cơ bản, các chi tiết kiến trúc đơn giản để giảm thiểu thời gian xây dựng cũng như chi phí đầu tư. Không gian nội thất cũng rất đơn giản cũng chính là mong muốn của chủ nhà, vì họ ho rằng không gian sống vui vẻ thoải mái không nhất thiết là phải sử dụng nội thất đắt tiền.



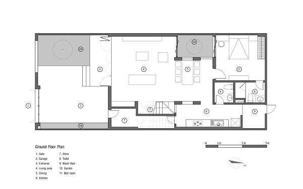
Ga ra để xe ở sân trước nhà, cũng là yếu tố phổ biến tại các ngôi nhà phố, bên cạnh đó là khu vườn nhỏ xanh mát.

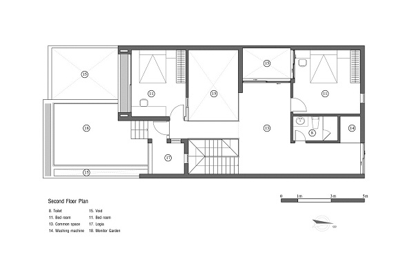
Các không gian chung ở tầng trệt được kết nối với nhau liền mạch, bếp được ngăn cách nhưng lại có sự kết nối với khoảng không gian phía ngoài nhà. Phòng ngủ ờ tầng 1 ngăn với khu vườn nhỏ vừa đảm bảo sự riêng tư nhất định vừa mang đến cảm giác thoải mái, yên tĩnh. Khu vườn nhỏ này cũng thông với tầng trên cùng của ngôi nhà.







Bản vẽ kiến trúc các tầng ngôi nhà


theo CafeLand