Alomuabannhadat - Ngôi nhà ấn tượng với hệ trần bê tông lạ mắt tọa lạc tại Sài Gòn.

Trong các công trình trước đây thường sử dụng hệ thống dầm, cột bê tông để kết nối các không gian khác nhau ngoài trời, nhưng với dự án này, kiến trúc sư vẫn sử dụng hệ thống bê tông này không chỉ là cấu trúc mà còn là không gian phân vùng và hướng đến tính thẩm mỹ.

Một loạt các cột bê tông được nhóm lại đóng vai trò làm điểm neo kết cấu cho các tấm bê tông ở bức tường.

Tại tầng một khối kết cấu bê tông xuất hiện nhằm bảo vệ không gian sống khỏi thế giới bên ngoài.

Tương tự với tầng thứ hai và tầng thứ ba khối bê tông được dùng để phân định ranh giới giữa không gian thư giãn và không gian riêng tư.

Trong đó phòng khách và phòng ăn được nổi bật và gây cảm giác trần nhà cao hơn so với những ngôi nhà thông thường. Các tầng trên cùng, kết cấu bê tông được lặp lại để xác định giới hạn giữa không gian bên trong và bên ngoài.


Khi màn đêm buông xuống, xa xa ngôi nhà thật vững chắc nhưng vẫn mềm mại bởi tràn ngập ánh sáng tự nhiên và mảnh xanh thoáng mát.


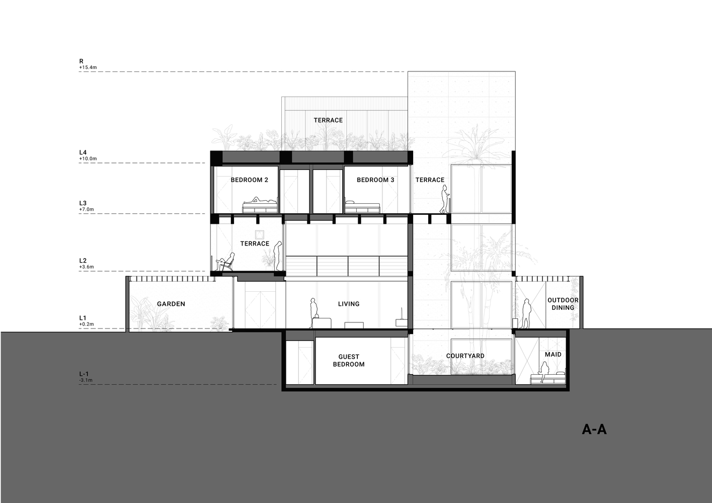
Bản vẽ kiến trúc ngôi nhà
theo CafeLand