Alomuabannhadat - Mới lạ và khác biệt chính là ngôi nhà mang phong cách kiến trúc hiện đại nằm trong khu dân cư quy hoạch tọa lạc tại quận Cầu Giấy, Hà Nội.

Ngôi nhà có diện tích 160m2 4 tầng được thiết kế mạnh mẽ với các hình khối lạ mắt, sử dụng các chất liệu dễ tìm tại Việt Nam.

Ngôi nhà có 4 thành viên, bao gồm cha mẹ và 2 người con trai lớn. Hiện tại, 2 người con đang du học và thỉnh thoảng trở về nên căn nhà được thiết kế ưu tiên dựa trên nhu cầu của cặp vợ chồng trung niên với mong muốn không gian chung rộng rãi và thoáng mát không có tường ngăn cách để dễ dàng nhìn thấy nhau.



Hiện trạng ban đầu ngôi nhà là hình chữ L có 3 tầng, tuy nhiên phương án cải tạo vẫn được giữ nguyên hệ kết cấu cũ do chủ nhà muốn rút ngắn thời gian thi công và giảm chi phí.

Phần lớn, ngôi nhà nằm hướng Tây và ở ngã 3 đường nên cũng là nhược điểm về ánh nắng luôn chiếu trực diện, nhất là vào mùa hè, chính vì vậy, kiến trúc sư đã sử dụng mảng xanh cho vị trí này gồm có phòng tắm cho phòng ngủ Master và trên nóc của phòng này sẽ có thêm khu vườn nhỏ.



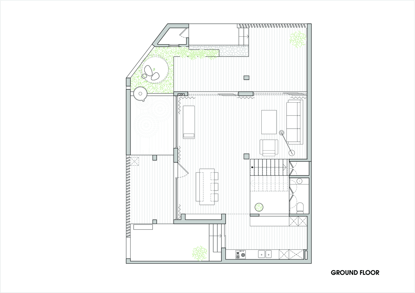
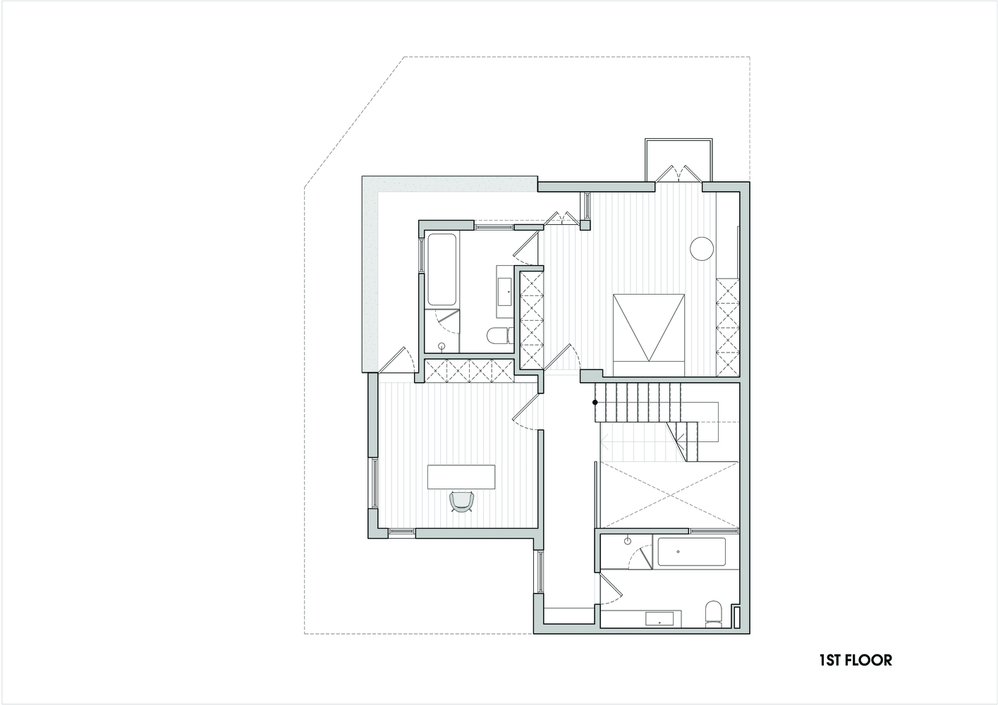
Mặt bằng các tầng của ngôi nhà



theo CafeLand